Accurate design begins with accurate measurements.
Working closely with architects, developers and property owners, we support projects from private extensions to large commercial and listed building refurbishments. Every survey is tailored to your project requirements, ensuring dependable as-built data that supports confident planning and construction decisions.

What Our Measured Building Surveys Include
Our measured building surveys provide detailed as-built drawings that accurately record the layout, structure and key architectural features of an existing building. These drawings form the foundation for architectural design, refurbishment projects and planning applications.
Measured building surveys typically include the following outputs, however the scope can be tailored to suit your project requirements, level of detail and budget — ensuring only the necessary elements are measured and documented.
Measured building surveys typically include the following outputs, however the scope can be tailored to suit your project requirements, level of detail and budget — ensuring only the necessary elements are measured and documented.

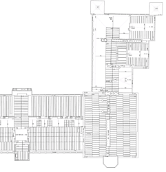
Floor Plans
Floor plans record the internal layout of a building, including wall positions, Heights, openings, staircases and key structural features.
These drawings allow architects and design teams to clearly understand the building’s arrangement and spatial relationships.

Elevations
Elevation drawings document the external appearance of a building, showing façade details, window and door positions, ridge and eaves heights, and other architectural features.
These drawings are commonly required for design development and planning submissions.

Sections
Sections illustrate the vertical relationship between floors, ceilings and roof structures, helping designers understand building heights, level changes and internal volumes.

Roof Plans
Roof plans capture roof geometry, ridge lines, valleys, parapets and other significant roof features. These drawings are particularly useful when designing extensions, alterations or roof-level interventions.
Survey drawings are supplied in industry-standard formats including DWG and PDF, allowing seamless integration into architectural and design workflows. Additional formats can be provided where required to suit the needs of your project.
Example Measured Building Survey Output
Our measured building drawings are delivered in clear, CAD-compatible formats, including detailed floor plans, elevations, sections and roof plans to support architectural design and planning submissions.






